wentylator oddymiający
PIRAX CPA F3/F4
- mała przestrzeń montażowa
- wirnik rewersyjny w standardzie
- przystosowany do pracy w jednym kierunku (PIRAX.G CPA) lub w obu kierunkach (PIRAX CPA)
- silniki jedno- oraz dwubiegowe
- klasa odporności ogniowej F400120, F300120
- konstrukcja poparta licznymi analizami CFD
- szybka i łatwa instalacja
- bezpieczeństwo
Konstrukcja
Strumieniowy wentylator oddymiający przeznaczony do odprowadzania gorącego powietrza, dymu oraz szkodliwych gazów powstałych podczas pożaru. Obudowa wentylatora wykonana z blachy stalowej ze zintegrowanymi obustronnie tłumikami akustycznymi o kształcie eliptycznym oraz aluminiowej obudowie. Uchwyty montażowe z możliwością regulacji wysokości zawieszenia. Niska waga dzięki zoptymalizowanemu wykorzystaniu materiałów. Specjalnie opracowany wirnik z łopatkami w kształcie 3D oraz zaprojektowana piasta stożkowa, poprawiają parametry oraz efektywność pracy w obu kierunkach przepływu powietrza. PIRAX.G CPA przystosowany został do pracy tylko w jednym kierunku. Siatka ochrony wlotu powietrza oraz deflektor wylotu powietrza są dostarczane w zestawie wraz z wentylatorem. Wersja PIRAX CPA posiada w zestawie deflektory do montażu po dwóch stronach urządzenia, co umożliwia pracę wentylatora w obu kierunkach. Sterowanie strugą powietrza możliwe jest poprzez regulację kąta nachylenia łopatek deflektorów wylotowych.
Napęd i sterowanie
Asynchroniczny silnik elektryczny 3~400V, 50Hz. Skrzynka elektryczna zamontowana na obudowie wentylatora.
Maksymalna temperatura pracy
400°C/2h, 300°C/2h - oddymianie,
60°C - praca ciągła.
Zastosowanie
Wentylatory strumieniowe przeznaczone są do pracy w systemach wentylacji garaży. Urządzenia zapewniają efektywne ograniczenie rozprzestrzenienia się gorącego powietrza, dymu oraz gazów powstałych w trakcje pożaru oraz skuteczne dzienne „przewietrzanie” zanieczyszczeń wywołanych ruchem samochodowym.
Dane techniczne
F300
| Typ | Pn | U | Częstotliwość | kierunek przepływu | Vmax | F | Pmax | Imax | RPMmax | Tmax | LpA* | nr katalogowy wersja dwukierunkowa PIRAX CPA | nr katalogowy wersja jednokierunkowa PIRAX.G CPA | |
| [kW] | [V] | [Hz] | [m3/h] | [N] | [W] | [A] | [1/min] | [°C] | [db(A)] | |||||
| PIRAX(.G) CPA 315 D42 F3 | 1,1/0,25 | 400 | 50 | silnik – wirnik | 4875/2400 | 28/7 | 1059/202 | 2,1/0,91 | 2890/1430 | 60 | 65/50 | 15913800 | 15913801 | |
| wirnik – silnik | 4910/2450 | 29/7 | 991/170 | 2,0/0,62 | 2900/1460 | 60 | 64/47 | |||||||
| PIRAX(.G) CPA 315 D2 F3 | 1,1 | 400 | 50 | silnik – wirnik | 4800 | 28 | 1050 | 2,25 | 2890 | 60 | 65 | 15912700 | 15912701 | |
| wirnik – silnik | 4790 | 27 | 977 | 2,17 | 2900 | 60 | 64 | |||||||
| PIRAX(.G) CPA 355 D42 F3 | 1,5/0,37 | 400 | 50 | silnik – wirnik | 7330/3640 | 50/12 | 1994/325 | 3,82/1,05 | 2905/1460 | 60 | 70/53 | 15911800 | 159118011 | |
| wirnik – silnik | 7050/3525 | 47/12 | 1813/299 | 3,58/1,02 | 2886/1450 | 60 | 68/50 | |||||||
| PIRAX(.G) CPA 355 D2 F3 | 1,5 | 400 | 50 | silnik – wirnik | 7200 | 49 | 1965 | 3,63 | 2905 | 60 | 70 | 15910600 | 15910601 | |
| wirnik – silnik | 6940 | 45 | 1740 | 3,32 | 2890 | 60 | 68 | |||||||
| PIRAX(.G) CPA 400 D42 F3 | 2,2/0,55 | 400 | 50 | silnik – wirnik | 10830/5500 | 87/22 | 2875/423 | 5,23/1,26 | 2885/1460 | 60 | 73/55 | 15909200 | 15909201 | |
| wirnik – silnik | 10020/5060 | 74/19 | 2594/382 | 4,75/1,21 | 2890/1460 | 60 | 72/53 | |||||||
| PIRAX(.G) CPA 400 D2 F3 | 2,2 | 400 | 50 | silnik – wirnik | 10745 | 85 | 2770 | 5,15 | 2885 | 60 | 73 | 15910200 | 15910201 | |
| wirnik – silnik | 9980 | 74 | 2543 | 4,84 | 2890 | 60 | 72 | |||||||
F400
| Typ | Pn | U | Częstotliwość | kierunek przepływu | Vmax | F | Pmax | Imax | RPMmax | Tmax | LpA* | nr katalogowy wersja dwukierunkowa PIRAX CPA | nr katalogowy wersja jednokierunkowa PIRAX.G CPA | |
| [kW] | [V] | [Hz] | [m3/h] | [N] | [W] | [A] | [1/min] | [°C] | [db(A)] | |||||
| PIRAX(.G) CPA 315 D42 F4 | 1,1/0,25 | 400 | 50 | silnik – wirnik | 4875/2400 | 28/7 | 1059/202 | 2,1/0,91 | 2890/1430 | 60 | 65/50 | 15916600 | 15916601 | |
| wirnik – silnik | 4910/2450 | 29/7 | 991/170 | 2,0/0,62 | 2900/1460 | 60 | 64/47 | |||||||
| PIRAX(.G) CPA 315 D2 F4 | 1,1 | 400 | 50 | silnik – wirnik | 4800 | 28 | 1050 | 2,25 | 2890 | 60 | 65 | 15913300 | 15913301 | |
| wirnik – silnik | 4790 | 27 | 977 | 2,17 | 2900 | 60 | 64 | |||||||
| PIRAX(.G) CPA 355 D42 F4 | 1,5/0,37 | 400 | 50 | silnik – wirnik | 7330/3640 | 50/12 | 1994/325 | 3,82/1,05 | 2905/1460 | 60 | 70/53 | 15912300 | 15912301 | |
| wirnik – silnik | 7050/3525 | 47/12 | 1813/299 | 3,58/1,02 | 2886/1450 | 60 | 68/50 | |||||||
| PIRAX(.G) CPA 355 D2 F4 | 1,5 | 400 | 50 | silnik – wirnik | 7200 | 49 | 1965 | 3,63 | 2905 | 60 | 70 | 15911100 | 15911101 | |
| wirnik – silnik | 6940 | 45 | 1740 | 3,32 | 2890 | 60 | 68 | |||||||
| PIRAX(.G) CPA 400 D42 F4 | 2,2/0,55 | 400 | 50 | silnik – wirnik | 10830/5500 | 87/22 | 2875/423 | 5,23/1,26 | 2885/1460 | 60 | 73/55 | 15908600 | 15908601 | |
| wirnik – silnik | 10020/5060 | 74/19 | 2594/382 | 4,75/1,21 | 2890/1460 | 60 | 72/53 | |||||||
| PIRAX(.G) CPA 400 D2 F4 | 2,2 | 400 | 50 | silnik – wirnik | 10740 | 85 | 2770 | 5,15 | 2885 | 60 | 73 | 15909700 | 15909701 | |
| wirnik – silnik | 9980 | 74 | 2543 | 4,84 | 2890 | 60 | 72 | |||||||
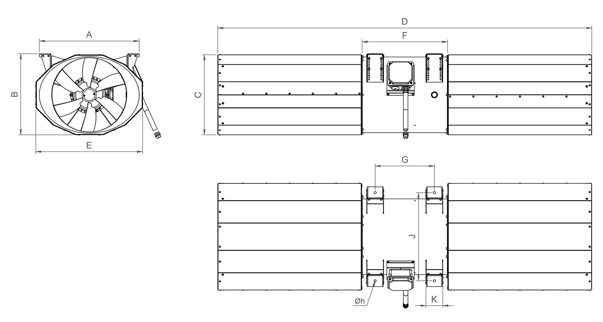
Wymiary

| Typ | A [mm] |
B [mm] |
C [mm] |
E [mm] |
F [mm] |
G [mm] |
H [mm] |
J [mm] |
L [mm] |
Øk [mm] |
| PIRAX(.G) CPA 315 D42 F3 | 452 | 340 | 547 | 445 | 339 | 47,4 | 344 – 394 | 447 | 1824 | 11 |
| PIRAX(.G) CPA 315 D2 F3 | 452 | 340 | 547 | 445 | 339 | 47,4 | 344 – 394 | 447 | 1824 | 11 |
| PIRAX(.G) CPA 355 D42 F3 | 452 | 340 | 589 | 505 | 379 | 47,4 | 386 – 436 | 489 | 1824 | 11 |
| PIRAX(.G) CPA 355 D2 F3 | 452 | 340 | 589 | 505 | 379 | 47,4 | 386 – 436 | 489 | 1824 | 11 |
| PIRAX(.G) CPA 400 D42 F3 | 452 | 340 | 635 | 560 | 424 | 47,4 | 429 – 479 | 535 | 1824 | 11 |
| PIRAX(.G) CPA 400 D2 F3 | 452 | 340 | 635 | 560 | 424 | 47,4 | 429 – 479 | 535 | 1824 | 11 |
| PIRAX(.G) CPA 315 D42 F4 | 452 | 340 | 547 | 445 | 339 | 47,4 | 344 – 394 | 447 | 1824 | 11 |
| PIRAX(.G) CPA 315 D2 F4 | 452 | 340 | 547 | 445 | 339 | 47,4 | 344 – 394 | 447 | 1824 | 11 |
| PIRAX(.G) CPA 355 D42 F4 | 452 | 340 | 589 | 505 | 379 | 47,4 | 386 – 436 | 489 | 1824 | 11 |
| PIRAX(.G) CPA 355 D2 F4 | 452 | 340 | 589 | 505 | 379 | 47,4 | 386 – 436 | 489 | 1824 | 11 |
| PIRAX(.G) CPA 400 D42 F4 | 452 | 340 | 635 | 560 | 424 | 47,4 | 429 – 479 | 535 | 1824 | 11 |
| PIRAX(.G) CPA 400 D2 F4 | 452 | 340 | 635 | 560 | 424 | 47,4 | 429 – 479 | 535 | 1824 | 11 |




